Nhà trong HẺM - Sài Gòn

Được đăng bởi Vũ Ngọc Nam 7/9/2016 6:30:36 PM
CHIA SẺ:
Văn phòng: Sanuki Daisuke architects
Địa điểm: Ho Chi Minh City, Ho Chi Minh 70000, Vietnam
Kiến trúc sư: Sanuki Daisuke, Huynh Anh Tuan
Năm thiết kế: 2015
Nhiếp ảnh: Hiroyuki Oki
Công ty xây dựng: Công ty TNHH Cơ khí và xây dựng & thương mại Tám sáu.
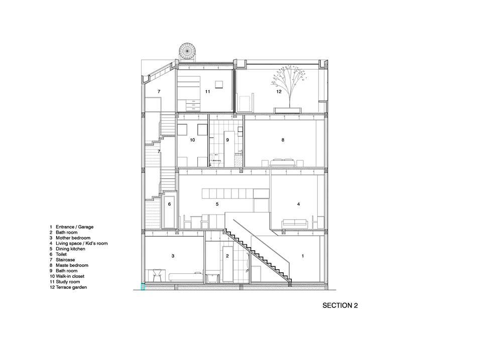
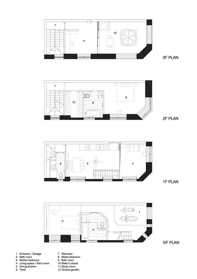
Chiều cao 13.6m, 4 tầng

nhà phố, thiết kế nhà ở, nhà trong hẻm, nhà ống
BÌNH LUẬN
THÔNG BÁO

LỊCH HỌC DỰNG HÌNH SKETCHUP CĂN BẢN TỔNG HỢP - THÁNG 10/2020

Nội dung cụ thể bạn vui lòng xem trên poster nhé.
T.H.K.T chân thành cảm ơn bạn <3

Đồng phục của Hutech "nhuộm màu" lớp học của T.H.K.T ^^

Đây là lớp Đào tạo DỰNG HÌNH SKETCHUP CĂN BẢN chiều ngày 06/01/2016, một lớp toàn các Sinh viên Nội thất của trường Hutech tại T.H.K.T

Chúng tôi luôn cố gắng đem đến SỰ HÀI LÒNG CHO CÁC BẠN! ^^
Cảm ơn các bạn rất nhiều! <3

Youtube
BÀI VIẾT MỚI
Facebook
Truy cập trong ngày : 3826
Truy cập trong tuần : 12089
Truy cập trong tháng : 63471

HỖ TRỢ TRỰC TUYẾN - 0916 172 173